OFFENBACH’S LIVING STREETS
An alternative regeneration strategy for affordable co-living and co-working typologies in Offenbach, Germany.
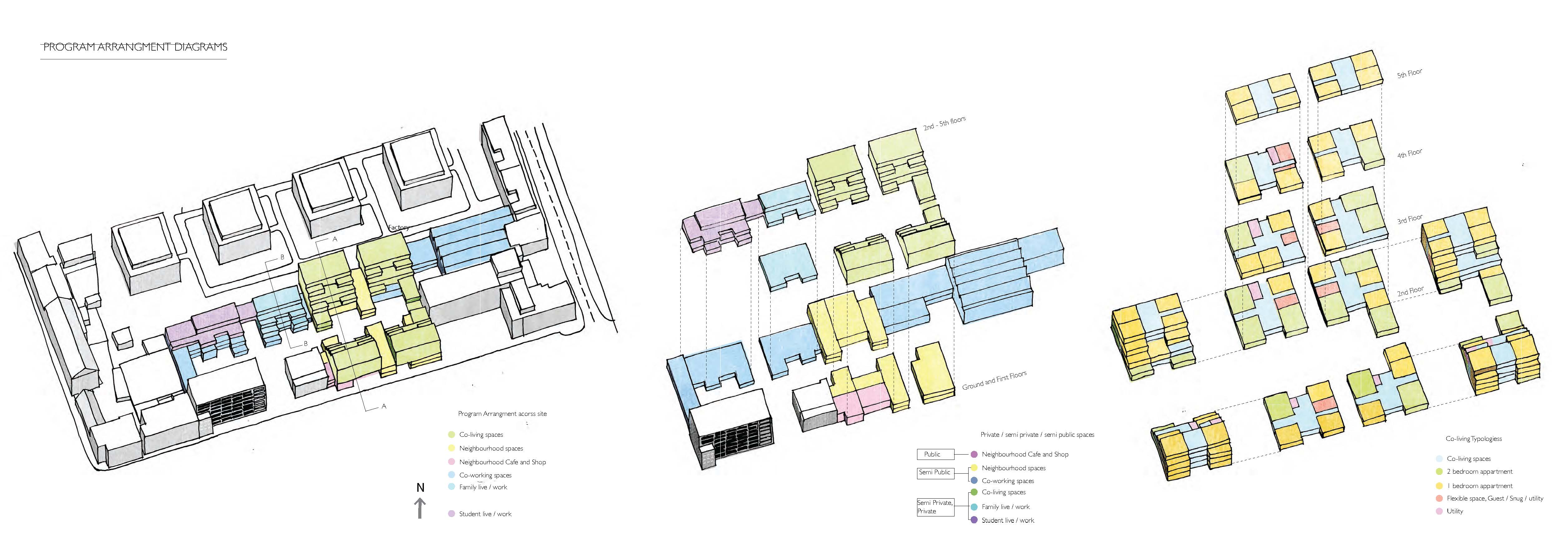
The thesis draws upon the potential of infilling and densifying large central, brownfield sites and defies tactics of demolition and economic regeneration. Instead, the project proposes a more inclusive and integrated strategy that defies property paradigms set out by developers, private owners, and policymakers to propose new co-living typologies. These alternative typologies aim to encourage greater mobilization for residents from different ethnic backgrounds into German culture and society. Therefore offering an alternative integration strategy within Offenbach’s urban block and current housing market, with a focus on community-led development.





















You must be logged in to post a comment.